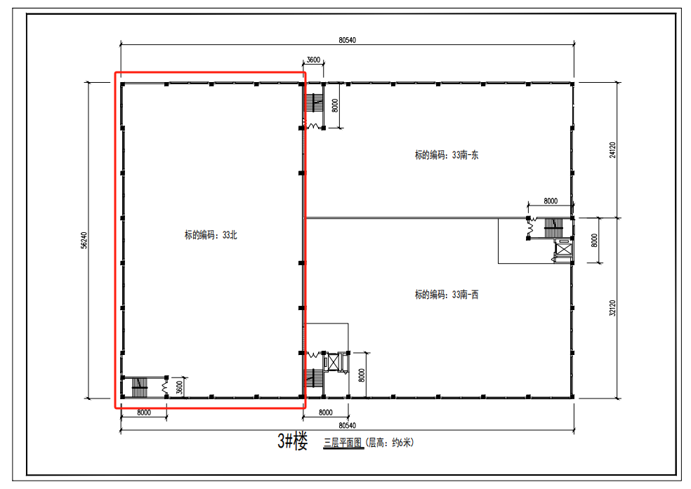
义乌市西站大道875号3号楼3楼北侧(建筑面积约为1869.79平方米)仓库三年租赁权
义乌市西站大道875号3号楼3楼北侧(建筑面积约为1869.79平方米)仓库三年租赁权
项目编号:GL2025ZJ1020026
| 挂牌价格 | 37.0136 万元(首年) | 出租面积 | 约1869.79平方米,详见平面图。 |
|---|
交易品类 资产出租
出租用途 仓库
所在地区 浙江省 金华市 义乌市
| 信息披露起始日期 | 2025-08-19 |
|---|---|
| 信息披露截止日期 | 2025-09-01 |
| 出租标的地址 | 义乌市西站大道875号3号楼3楼北侧 |
| 交易机构 | 注册、报名、竞价辅导请联系 400-696-3939 |
常见问题
标的信息
流程相关
出租方承诺
标的基本情况
出租方简况
交易条件与资格条件
信息披露其他事项
标的物位置
联系方式
出租方承诺
我方拟出租有权处置/受托管理的资产,并通过“浙交汇”平台公开披露资产出租信息和组织交易活动,依照公开、公平、公正和诚信的原则作如下承诺:
(1)本次出租是我方真实意思表示,出租标的权属清晰,除已披露的事项外,我方对该资产拥有完全的处分权且不存在法律法规禁止或限制交易的情形。
(2)本次出租已履行了相应程序,经过有效的内部决策,并获得相应批准;
(3)我方所提交的出租申请及相关材料真实、完整、准确、合法、有效,不存在虚假记载、误导性陈述或重大遗漏;
(4)我方在交易过程中自愿遵守有关法律法规和“浙交汇”平台相关交易规则及规定,恪守出租公告约定,按照相关要求履行我方义务;
(5)我方已认真考虑本次出租行为可能导致的企业经营、行业、市场、政策以及其他不可预计的各项风险因素,愿意自行承担可能存在的一切交易风险;
(6)我方已如实、完整地披露标的资产状况,并在标的资产出租后积极协助承租方办理资产交接手续,若发生资产交接纠纷,由我方负责解决;
(7)若标的资产存在优先承租权人的,我方将履行通知义务,包括但不限于通知并要求原承租人按公告的要求办理意向登记手续并参与竞价活动等;
(8)在本次出租活动、《租赁合同》签订及后续履行过程中发生的一切纠纷,均由我方自行解决,与“浙交汇”平台无关。
我方保证遵守以上承诺,如违反上述承诺或有违规行为,给交易相关方及浙江产权交易所有限公司和和“浙交汇”平台造成损失的,我方愿意承担相应的赔偿责任及其他法律责任。标的基本情况
标的状态 空置 其他权利情况 无 其他披露事项 1、权证相关信息:无产权登记证。 2、出租标的现有装修及设施、设备情况:按现状交付。 3、是否办理抵押登记:否。 4、是否设立居住权:否。 5、此次竞买仅为出租标的租赁权,不包括出租标的内设施、设备和物品。竞买方报名前需进行实地勘察,标的实际出租位置及面积,以现场实地勘察及咨询出租方为准。
出租方简况
出租方基本情况 出租方名称 义乌市义盐商业管理有限公司 联系人 邵经理 联系方式 固定电话:13605810086 联系地址 义乌市西站大道875号 交易条件与资格条件
交易条件 租金挂牌价 37.0136 万元(首年) 是否有保留价 无 租金挂牌价备注 首年37.0136万元(含物业费67313元),第二年起每年递增1%(不含物业费)
权利人是否放弃优先承租权 不涉及 租金支付要求 采用先付款后使用的原则,租金每1年支付一次,具体以租赁合同约定为准。
出租用途 仓储(有关法律、政策规定不允许的用途外) 与交易相关的其他条件 1、履约保证金:7.4万元。 2、承租方须按照相关法律法规自行办妥经营证照、经营许可证等相关证照及手续,并自行完善相关配套设施,如依法需由出租方提供有关资料办理的,出租方协助提供。 承租方须在承租前自行对出租标的进行全面了解,并对营业所需的各项审批条件和规定进行充分自核。承租方参与竞租的行为将被认为已作充分的预判和决策,无论因何种原因导致不能获得营业开设审批(包括土地规划用途和既有结构、设计等因素在内),或后续因为政策变化导致无法继续开设的各项经营风险,承租方承诺独立承担,出租方不对无法履行、投入成本、装修损失等承担任何形式的赔偿或补偿责任。 3、出租标的使用过程中的水、电、物业管理费由承租方承担,具体以租赁合同约定为准。 4、出租标的按现状交付使用,交付时出租方不保证原装修、装饰物的完好,不负责原装修的拆除工作。 5、承租方承租标的后需进行装修的,装修方案需书面报出租方审核通过后方可进行。 6、承租方与出租方应在项目成交后10个工作日内签订租赁合同,如自项目成交后第30个自然日内双方仍未签订租赁合同的,项目自动终结,出租方有权收回标的或收回后重新挂牌。 7、承租方竞得后不得变更签约人,不得对出租标的进行转租、分租、调换使用或抵押。 8、房屋租赁合同中除承租方相关信息及“租金价格”条款等手填条款外,其他条款均已确定而不得修改。
租期 3年 有无免租期 无 承租方资格条件 意向承租方应为依法设立并有效存续的法人、非法人组织或具有完全民事行为能力的自然人。
保证金事项 交纳金额(万元) 0.50 交纳时间 意向方需在信息披露期满日17:00前交纳保证金(以“浙交汇”平台保证金订单完成支付为准)。 温馨提示 因技术、网络等原因,您的资金汇入银行账户后,在“浙交汇”平台-“我的账户”中的到账时间可能发生迟延,请在截止时间前尽早汇入资金。 交纳方式 网上银行;银行转账 保证金扣除条款 1.竞买活动结束后,未被确定为承租方的竞买方,且未出现“浙交汇”平台规定应当扣除或不予退还竞买保证金情形的,其已递交的保证金在竞价活动结束后10个工作日内无息原路返还至竞买方的“我的账户”中。 2.项目成交(即竞买方被确定为承租方)后,承租方递交的竞买保证金扣除承租方交易服务费后的余额自动转为立约保证金,浙交所在项目成交后:十个工作日内将立约保证金转付至出租方指定账户。
信息披露其他事项
披露信息 信息披露期 公告之日起10个工作日 信息发布期满后,如未征集到意向承租方 延长信息披露,不变更信息披露内容,按照5个工作日为一个周期延长,最多延长1个周期。 是否自动延牌 是 延牌情况 目前已延长0个周期,已延长0个工作日 遴选方式 动态报价 遴选方案主要内容 1、公告挂牌期:自信息披露起始日至信息披露期满日下午5时整止,期间征集意向承租方并办理线上报名登记手续。符合承租方条件的意向承租方应在信息披露期满日下午5时(报名截止时间)前在“浙交汇”平台完成线上报名手续并完成保证金订单支付,逾期无效。 2、挂牌期满后,如未征集到合格竞租方,则延长信息披露:不变更挂牌条件,按照5个工作日为一个周期延长,按照1个延期周期数延期。 3、挂牌期满后,如征集到一家(或一家以上)符合条件的竞租方,则按动态报价结果确定成交价和承租方。
项目附件 《报名所需材料清单及说明》.docx
《房屋租赁合同》.docx
《实地勘察证明》.docx
《授权委托书》.docx
《特别事项约定》.docx
《浙交汇意向方报名时所需文本(动态报价)》.docx
标的待出租面积(红色部分)平面图.png标的物位置
联系方式
交易机构 联系人 王经理 电话 400-696-3939 传真 邮箱 地址 浙江省杭州市上城区望江东路332号望江国际4号楼18层 网址 www.zjpse.com
